Q. 各レイアウトのビューの表示位置を揃えたい
A1. [スクロール(2点指定)]を使います
A2. [レイアウト・ビュー一覧]から[中心座標]を指定します
各レイアウトで図面の表示位置を揃えたい場合、A1、A2の方法で揃えることができます。 ここでは、平面図1のレイアウトを平面図2のレイアウトと同じ位置に揃える操作を行います。

▼A1 [スクロール(2点指定)]を使います
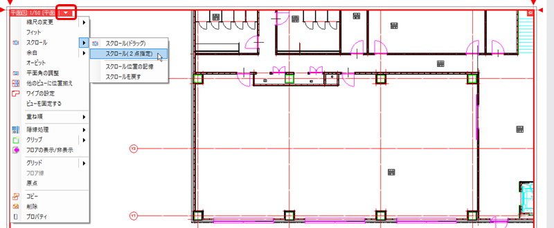
①位置を揃えたいレイアウト(平面図1)のビュー名横[▼]-[スクロール(2点指定)]をクリックします。

②1点目で移動元(平面図1)の基準点をクリックします。2点目で位置を揃えたいレイアウト(平面図2)の基準となる点をクリックします。 ここでは基準を通り芯の交点でとります。


▼A2 [レイアウト・ビュー一覧]から[中心座標]を指定します
①[表示]タブ-[レイアウト・ビュー一覧]をクリックします。

各レイアウトのレイアウト名横の[+]をクリックし、レイアウト内のビューの[中心座標]を確認します。

②[中心座標]の値を変更するレイアウト(平面図1)のビューを選択し、[編集]をクリックします。
[ビューの編集]ダイアログで [中心座標]の値を、位置を揃えたいレイアウト(平面図2)と同じ値を入力します。

補足説明
[レイアウト・ビュー一覧]でCtrlキーやShiftキーの長押しで複数ビューを選択し、まとめて編集もできます。
補足説明
各ビューの中心座標はビュー名横の[▼]-[プロパティ]からも確認、変更できます。

